Blick auf das Industriegebiet Kirschallee 1 und 2

Industriegebiet Kirschallee 1 und 2

Planzeichnung Kirschallee 1 - 1. Änderung

Planzeichnung Kirschallee 1 - 1. Änderung

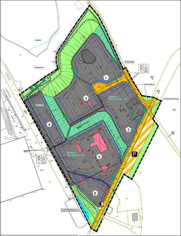
Planzeichnung Kirschallee 2

Planzeichnung Kirschallee 2

powered by webEdition CMS